KENIA C III COMPLEJO 6 UNIDADES

direccion Santiago Del Estero Entre Belgrano Y Duhau, Costa Azul

volver Volver al listado
left
right
left
right

Venta

USD 38.000

  • Destacado Destacado
  • Oportunidad
  • Tipo de propiedad Departamentos
  • ambientes 3 Ambientes
  • toilet 2 baños
  • cama 2 Dormitorios
  • Anticipo y cuotas Anticipo y cuotas
  • Antiguedad Antigüedad En construcción

Acerca de la propiedad

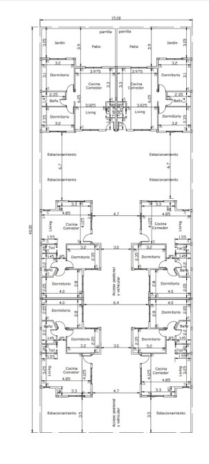
?? VENTA EN POZO – Complejo de 6 Unidades en Costa Azul
? Ubicación: Costa Azul

¡Increíble oportunidad de inversión en la costa! Te presentamos este moderno complejo de 6 unidades de 3 ambientes, actualmente en construcción, con entrega prevista para marzo de 2026.

? Características de cada unidad:
• ?? 2 habitaciones amplias
• ? 2 baños (uno completo y un toilette)
• ?? Cocina integrada al living-comedor
• ? Ambientes luminosos y funcionales
• ? Listo para escriturar

? Servicios:
• Cloaca
• Gas envasado
• Luz
• Agua corriente

¡Unidad 1/2: $40.000USD!
¡Unidad 3/4: $38.000USD!
¡Unidad 5/6: $42.000USD!

? Ideal para vivienda permanente, descanso o renta turística en una ubicación privilegiada de la Costa.

? ¡Comprá en pozo y asegurá tu inversión con excelente proyección a futuro!

Consultanos para conocer planos, forma de pago y valores disponibles.

Comodidades

  • Patio Con patio
  • Cochera cochera
  • Parrilla Con parrilla
Ver más

Ubicación

Servicio brindado por

buscadorprop

Todos los derechos registrados:

grupotodo
whatsapp Whatsapp email Contactar telefono Llamar
Chatea con nosotros whatsapp